Всем привет!
Прошу помочь с акустической подготовкой комнаты.
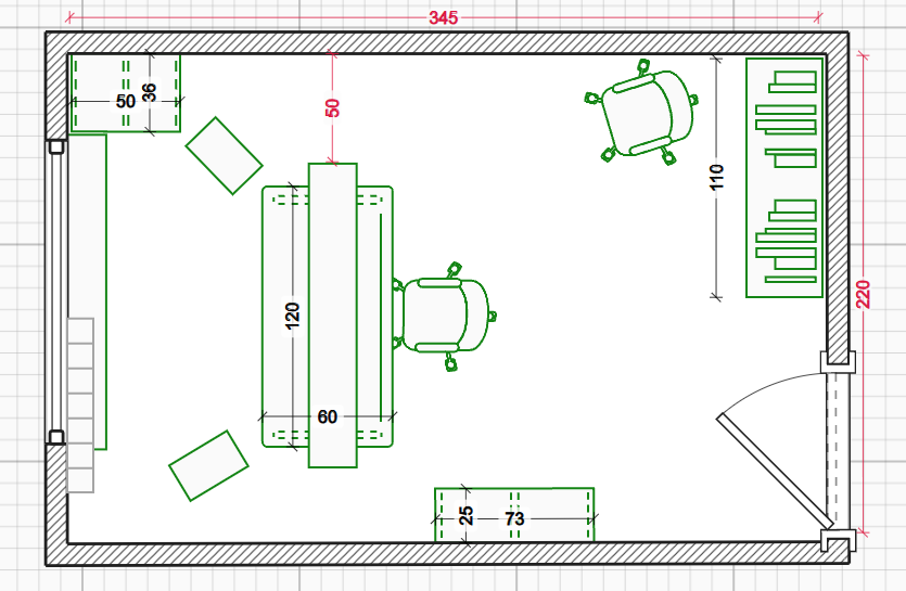
Комната небольшая: 3,4 × 2,2 м, высота 2,5 м, хрущевка. Текущая отделка: стены – обои, потолок – под по краску, пол – паркет + ковер.
Схему того, как сейчас прикрепляю.
Задачи две: поставить вторую пару мониторов и максимально подготовить комнату в плане установки диффузоров, панелей, басовых ловушек и т.д. Готов рассмотреть покупку нового стола и перестановку мебели, если будет большой эффект.
Сейчас (на мой слух) звучит не сказать, что ужасно, единственное что сильно заметно ≈120 Гц начинают гудеть. В остальном миксы достаточно хорошо переносятся, т.е. что я слышу у себя, то +/- слышу и на других системах.
Но лучшее – враг хорошего, поэтому хочу спросить и буду рад советам, как и что можно улучшить.
Прошу помочь с акустической подготовкой комнаты.
Комната небольшая: 3,4 × 2,2 м, высота 2,5 м, хрущевка. Текущая отделка: стены – обои, потолок – под по краску, пол – паркет + ковер.
Схему того, как сейчас прикрепляю.
Задачи две: поставить вторую пару мониторов и максимально подготовить комнату в плане установки диффузоров, панелей, басовых ловушек и т.д. Готов рассмотреть покупку нового стола и перестановку мебели, если будет большой эффект.
Сейчас (на мой слух) звучит не сказать, что ужасно, единственное что сильно заметно ≈120 Гц начинают гудеть. В остальном миксы достаточно хорошо переносятся, т.е. что я слышу у себя, то +/- слышу и на других системах.
Но лучшее – враг хорошего, поэтому хочу спросить и буду рад советам, как и что можно улучшить.


