Ребята всем привет! Прочитал много веток, уже не первый день интересуюсь темой и дома ремонт происходит, и я решил сделать небольшое акустическое улучшение в комнате.
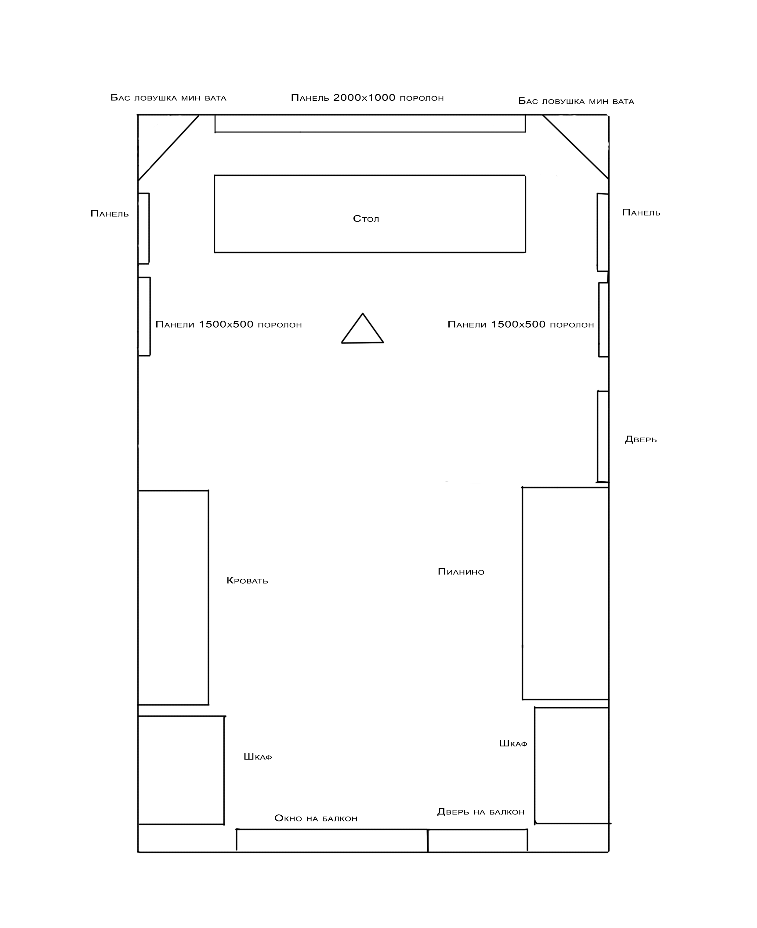
Ниже прикреплю план комнаты, там всё нарисовано что хочу сделать, выслушаю любую вашу критику. Соотвественно бюджет небольшой 10 000 рублей на постройку панелей, исхожу из этого.
Что хочу получить? Честно сказать не знаю. Бас гуляет. Реверберация комнаты есть, не очень приятная. Немного улучшить комнату хочу акустически, на сколько это возможно.
Как я понял вч и сч - можно заглушить поролоном, присмотрел 80 мм толщина 25 кг плотность.
Для низких думаю бас ловушки сделать из минеральной ваты, поместив их под плёнку.
Так и не понял можно ли из экологически чистых вариантов делать панели?
Ниже прикреплю план комнаты, там всё нарисовано что хочу сделать, выслушаю любую вашу критику. Соотвественно бюджет небольшой 10 000 рублей на постройку панелей, исхожу из этого.
Что хочу получить? Честно сказать не знаю. Бас гуляет. Реверберация комнаты есть, не очень приятная. Немного улучшить комнату хочу акустически, на сколько это возможно.
Как я понял вч и сч - можно заглушить поролоном, присмотрел 80 мм толщина 25 кг плотность.
Для низких думаю бас ловушки сделать из минеральной ваты, поместив их под плёнку.
Так и не понял можно ли из экологически чистых вариантов делать панели?
Вложения
Последнее редактирование: