Планировка студии звукозаписи

Dmitry Karolik

New Member
13 Окт 2016
5
0
1
35
Посмотреть вложение 121735 Посмотреть вложение 121736 Добрый день, уважаемые жители форума!
Впервые столкнулся с задачей создания студии, поэтому прошу совета более опытных коллег, чтобы понять хотя бы примерно в каком направлении двигаться.
Общие размеры помещения - 7,5м * 7,5м * 3,5м
Все стены кирпичные, пол/потолок - бетон.
На прилагаемом наброске все несущие стены и колонна в центральной части обозначены штрихом, все стены которые можно сносить - карандашом.
Цель - создать студию в которой можно будет заниматься записью вокала и живых инструментов (ударных в том числе) и сведением их.
То есть на имеющейся площади нужно уместить собственно студию, контрольную комнату, прихожую, и возможно маленькую комнату для записи вокала (по этому поводу почитал статьи на RMM что многие не советуют делать это в отдельной комнате, если она недостаточно большая, но все же как вариант для размышления).
Если предусмотреть в контрольной комнате возможность установки системы 5.1, это будет плюсом.
Помещение находится в кирпичном здании на втором этаже, толщина капитальных стен - 400мм, окна - пластиковые стеклопакеты, под окнами асфальтированная дорога, находящаяся на прилегающей территории (то есть постоянного потока машин нет, скорость движения низкая).
К посту прилагаю два наброска: на первом помещение в том состоянии, в котором оно сейчас, на втором - оно же, но со снесенными перегородками.
Как на ваш взгляд рациональнее распределить площадь?
С какими проблемами (помимо высоких потолков и параллельных (пока) стен) я столкнусь?
Если у кого-то будет возможность на словах описать планировку, как она вам видится, или прикрепить набросок от руки, буду очень благодарен!
Спасибо! Посмотреть вложение 121735 Посмотреть вложение 121736
 

Вложения

  • Студия 1.jpg
    Студия 1.jpg
    536,3 KB · Просмотры: 465
  • Студия 2.jpg
    Студия 2.jpg
    527 KB · Просмотры: 356
Дима, вопросов очень много. Скинь вариант распределения площади, который у тебя есть, может кто-то подскажет. А там по ходу разбираться будем.
 
Вот несколько вариантов планировок. Если у кого-то возникают какие то мысли, если кто-то видит явные ошибки уже на этом этапе, просьба - отпишитесь, мне важна любая критика)
[DOUBLEPOST=1477340519][/DOUBLEPOST]Вот помещение, какое оно сейчас и каким будет если оставить только капитальные стены и бетонную колонну:
 

Вложения

Пара очень общих советов:
1. Не городите саркофаг для записи вокала, все равно вы не будете писать его одновременно с исполнителями в тон-зале. При необходимости более "intimate" акустику создадите с помощью переносных ширм (гобо).
2. Попробуйте разделить площадь наискосок, это позволит избежать параллельности стен (и сопутствующих такой конфигурации проблем).

Кстати, что за пакеты в окнах? Если бюджет и прочие условия позволяют, простенькие однокамерные желательно заменить.
 
  • Like
Реакции: МедведЪ
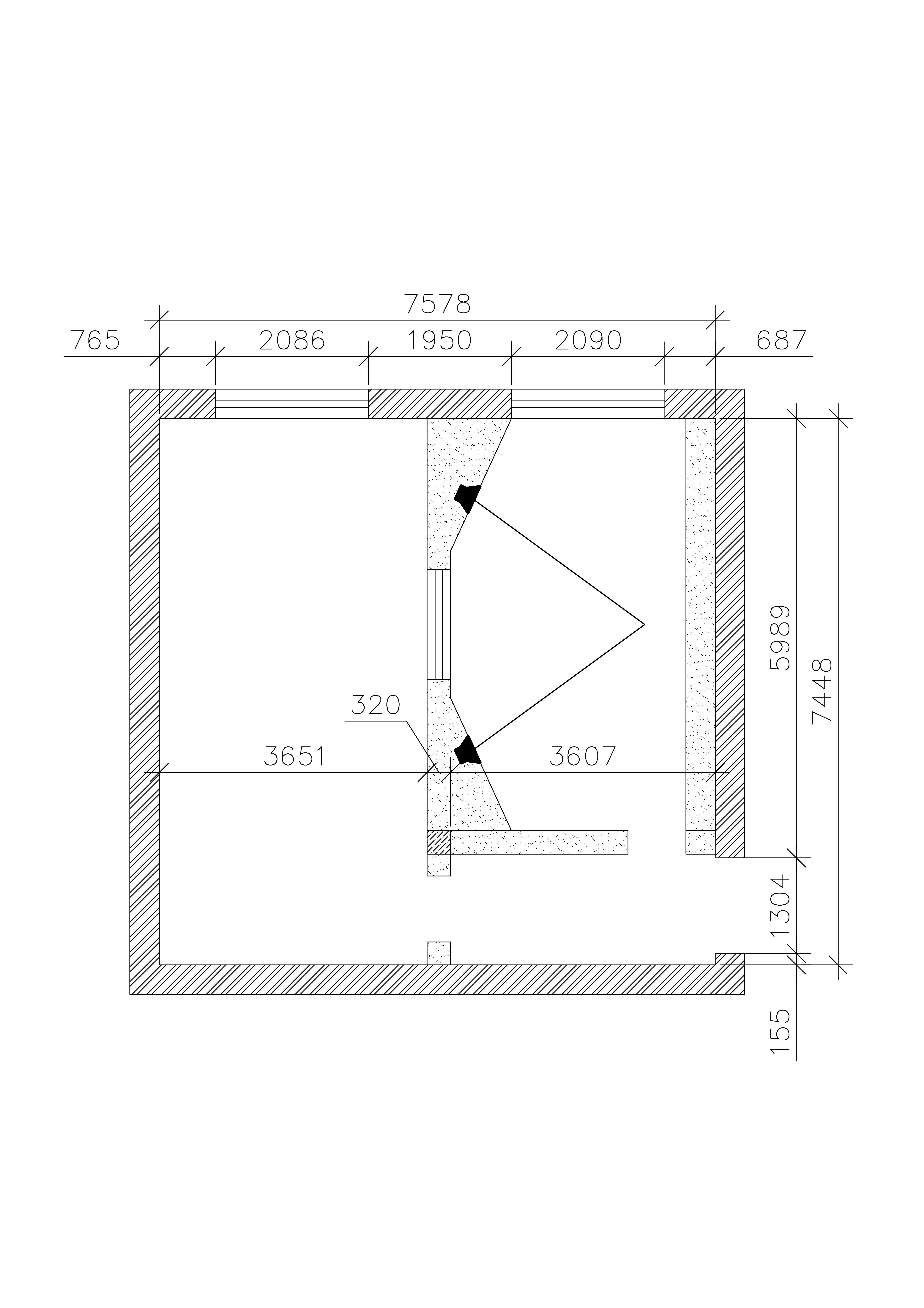
Далее я размышлял так: в правом нижнем углу на чертеже у нас вход - соответственно надо бы остальные помещения от него отделить тамбуром (прихожей), то есть в правом нижнем углу у нас по-любому прихожая.
Следом за этим я попытался представить себе контрольную комнату, ее размер. Почитал что для установки мониторов среднего/дальнего поля нужно примерно метра три между ними и три метра от каждого из них до звукорежиссера. Ну и условно говоря "окружность" радиуса полтора метра вокруг звукорежиссера, чтоб было какое то пространство. Это как минимальная площадь, от этого я отталкивался. Также стремился все-таки как можно больше площади урвать под комнату записи, и на некоторых чертежах пытался сделать ее неправильной формы, так как почитал немного про стоячие волны. Еще одним нюансом являлось окно - сильно это плохо отразится на симметрии, не будет ли перекоса в восприятии при прослушивании (из-за отражений), или штору толстую повесить и нормально.. в общем, нарисовал несколько вариантов, размышляю над ними, советуюсь, надеюсь и вы поможете советом) и, да, я подумал что для контрольной комнаты самое удобное место это в правой части помещения, там и ввод электричества, и ближе ко входу (значит в комнате записи будет тише, чем если бы она была у входа). На тему окна в комнате записи я подумал сделать ставни (не просто деревянные, а какую-нибудь комбинацию из той же минеральной ваты и фанеры например, но это я думаю можно опытным путем решить впоследствии). Хоть они там и пластиковые, и дорога далеко, но достаточно хорошо проводят шум, для того чтобы записать там например хотя бы акустическую гитару, не боясь на фоне уловить автомобиль. Вот, прикрепляю три основных варианта планировки - первую самую простую, но меня смущает что комната записи в таком случае становится вытянутой "кишкой" с двумя параллельными стенами, и два варианта с комнатами неправильной формы:
 

Вложения

Угу. То есть лучше забить на вокальную как отдельную комнатку, видимо да, не в первый раз такое советуют, спасибо!
Вот прилагаю три варианта, на двух как раз за основу взято разделение наискосок, единственное у стены есть привязка к бетонной колонне, подумал что ее лучше спрятать в стене.
Окна пластиковые, по-моему однокамерные.
А что вы думаете на тему ставен?
Совсем закладывать окно в комнате записи не хочется - и с той точки зрения что музыкантам приятней разыграться, когда природа за окном, да и может в некоторых случаях не обязательно обеспечивать полную тишину.
И самый большой вопрос у меня на тему окна в контрольной комнате - из всех трех вариантов мне ближе всего последний, когда комната записи несимметрична а контрольная комната прилегает к окну - но не будет ли это окно дребезжать на низких частотах, кто его знает)
Хотя конкретно это можно и опытным путем проверить, до строительства.
Но в принципе каково ваше мнение на тему присутствия окна в контрольной комнате?
 
Понял. Значит скорее всего отметаю вариант с с комнатой без окна и вариант с прямоугольными комнатами. Остается этот:
[DOUBLEPOST=1477378722][/DOUBLEPOST]Может быть у кого-нибудь конкретно по этому варианту планировки найдутся замечания/идеи?
И сильно ли посоветуете опускать потолок (напоминаю он 3500мм)?
 

Вложения

  • Page8.jpg
    Page8.jpg
    1,1 MB · Просмотры: 257
Окно не будет дребезжать при правильном монтаже, но однокамерное - это для офиса )) Поменяйте хотя бы на двухкамерное - разницу по ШИ услышите сразу. Закладывать окна не надо, присутствие живого света - это плюс. Можно сделать тяжелые ставни с поглощающей облицовкой - не только в тонзале, но и в контрольной. Двери - тяжелые, по возможности двойные.
Потолки опускайте по минимуму, точную высоту лучше определить в увязке с остальными размерами для минимизации проблем с модами.
Потолок также желательно не делать параллельным полу, а еще - расположить на нем диффузоры.

Пишу все не как строитель, а как достаточно тертый пользователь. ))
Если подключатся камрады, которые сами строили студийные помещения, информации будет больше.
 

Сейчас просматривают